ルシーヌ南熱海第2 MA455-1
ルシーヌ南熱海第2 2DK
MA455-1 ルシーヌ南熱海第2 成約済 リフォーム済 海望む
内装リフォーム済のきれいなお部屋。海に近く緑豊かな閑静な高台の住宅地です。お部屋は1階ですが、海と山を望む、見晴らしの良いロケーションです。大浴場等の施設はありませんが、その分維持費はリーズナブルです。
※画像をクリックすると拡大表示されます。
●管理費等 16,000円/月(管理費10,000円 修繕積立金6,000円 )
●その他費用 水道基本料 1,000円/月
(物件概要)
◆マンション名:ルシーヌ南熱海第2
◆所在地:静岡県熱海市下多賀1639番地の12 地図はこちら
◆交 通: 伊東線「網代」駅 約1.9km
◆土地権利: 所有権
◆都市計画 : 非線引き区域
◆用途地域 : 第二種中高層住居専用地域
◆建物面積 : 47.06㎡(14.23坪)
◆バルコニー面積:4.55㎡
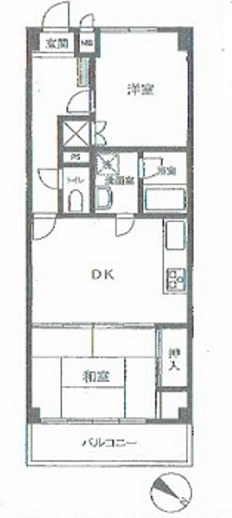
◆間取り:2DK
◆階数・向き:3階建の1階部分 北東向き
◆建物構造: 鉄筋コンクリート造地下1階付3階建
◆建築年月: 平成3年2月
◆総戸数: 15戸
◆設 備: 東京電力・公営水道・集中浄化槽・集中プロパン
◆駐車場: 屋内7台 7,000円/月 屋外7台 4,000円/月
◆管理会社:調査中
◆管理形態:全部委託・巡回
◆ペット: 不可
◆現 況: 空き
◆引渡し: 相談
◆取引態様 : 媒介
◆備考: 内装リフォーム済のきれいなお部屋です。
エアコン2基、モニターホン、シャワートイレ新設
大浴場等の施設はありません。
※内容と現況が異なる場合は現況優先となります。
★ 内覧希望の方は事前にご予約をお願いいたします。
株式会社 伊豆あたみハウジング
お電話でのお問い合わせは 0120-930-852 携帯からは 0557-37-5252






